1 bedroom
1 bathroom
1 reception
1 bedroom
1 bathroom
1 reception
ApproachSet in an elevated position on the corner of Newton Road and Court Lane this property fronts both roads with entrance off Court Lane through a low level hamstone wall with wrought iron gates and several steps up to the vestibule entrance door.
InsideThe initial reception entrance area opens to the main building with high vaulted ceiling, stained glass windows and timber flooring.
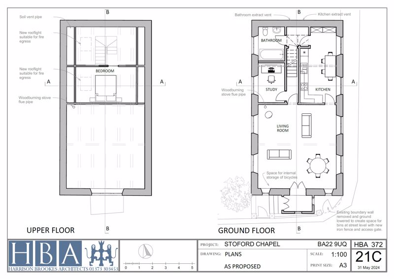
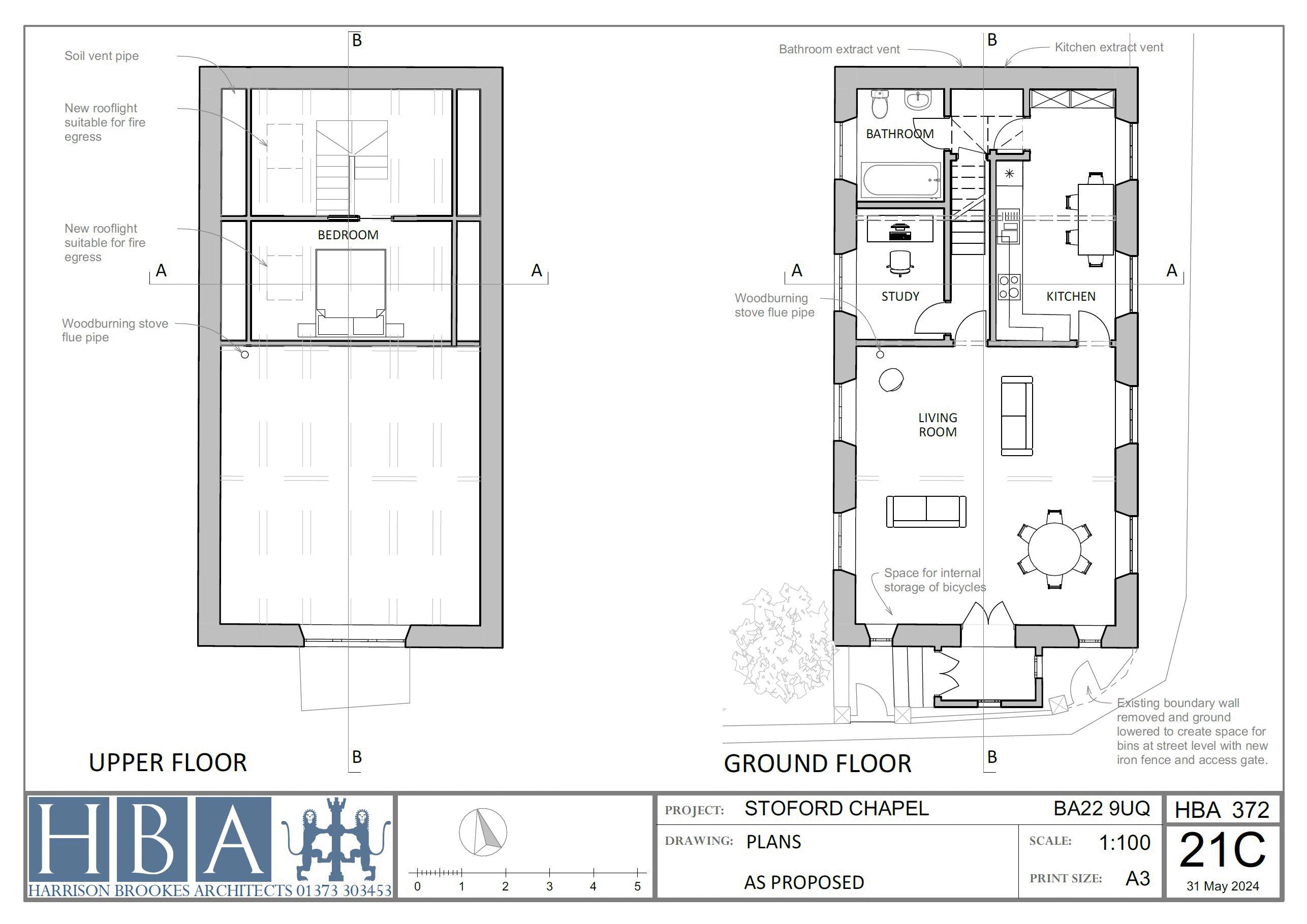
Planning Design Proposal The current owner has received planning permission to convert this space into a large 1 bedroom home. Maintaining the structure, the entrance will be to the vestibule and then into the living space. Living Room: Splitting the property in half to create a very spacious main living area with full height vaulted ceilings and utilising the existing windows including the high set windows in the gable end as well as provision of a wood burning stove and flu. Kitchen: With space for storage, white goods and large enough to accommodate a breakfast table plus seating and utilising 4 existing windows. Study: Separate space for a home work area. Bathroom: Situated on the ground floor. Stairs to First Floor with access to the bedroom. The upper landing and bedroom have approval to add roof windows.
Planning Consent24/01372/FUL Self-build conversion of a former Methodist Chapel to a single residential dwelling; and external alterations to the building including two rooflights and flue on west roof slope and formation of bin collection area behind new metal gate and railings. (Revised application of 23/02054/FUL)
Material Information• Freehold Former Wesleyan Methodist Chapel • Unoccupied since 1984, with registered use as a light storage area • Full Planning Permission Obtained to Convert to a Single Residential Dwelling • Mains Drainage, Water and Electric • Situated within the Conservation Area of Stoford • On street parking • Flood Zone 2: Medium Risk • Broadband: OFCOM: Superfast, up to 80Mbps
Photo 1
Photo 2
Photo 3
Photo 4
Photo 5
Photo 6
Photo 7
Photo 8
Photo 9
Photo 10
Photo 11
Photo 12
Photo 13
Photo 14













